Cửa kính cường lực dần được ưu ái hơn khi được sử dụng rộng rãi để lắp đặt cho nhà ở, cửa hàng, bệnh viện… nhờ vẻ thẩm mỹ, độ bền và độ an toàn cực cao. Phổ biến là vậy nhưng có lẽ nhiều bạn vẫn không biết cấu tạo cửa kính cường lực là gì đúng không? Trong bài viết hôm nay Kính Miền Nam sẽ giúp bạn hiểu hơn về cấu tạo chi tiết của sản phẩm này.
Cửa kính cường lực có cấu tạo khá đơn giản, mặc dù mẫu mà và kiểu cửa được sản xuất khá đa dạng nhưng về cấu tạo chung thì các loại cửa khá tương đồng, chỉ khác biệt ở một vài bộ phận, tùy theo nguyên lý hoạt động của nó.
Sử dụng cửa kính cường lực, việc nắm bắt chi tiết cấu tạo sản phẩm sẽ giúp bạn hiểu hơn về loại cửa mà mình đang sử dụng cũng như chủ động hơn trong việc khắc phục các lỗi thường gặp, bảo trì hoặc thay thế các bộ phận khi cần thiết.
Cấu tạo của cửa kính cường lực gồm những gì?

Kính cường lực
Kính cường lực là bộ phận chính để tạo thành cửa kính cường lực. Kính được sử dụng làm cửa thường có độ dày từ 8 đến 12mm. Mặt kính sẽ được gia công thêm các chi tiết như bản lề, lỗ, tay nắm cửa. Kính cường lực có ưu điểm là độ bền cao, chịu nhiệt và chịu lực tốt nên tuổi thọ gần như là vĩnh cửu.
Ngoài ra, kính cường lực còn có công dụng cách âm, cách nhiệt hiệu quả cực kỳ phù hợp với các căn nhà phố. Kích thước kính sẽ phụ thuộc vào nhu cầu lắp của khách hàng. Theo thông thường thì kính cường lực sẽ có kích thước là 800 x 2200
Với các loại cửa kính cường lực phổ biến hiện nay đều sử dụng kính cường lực với độ dày thấp nhất là 10mm. Kích thước cụ thể phụ thuộc vào yêu cầu, thiết kế và thi công của mỗi công trình hay chiều cao công trình.
Chiều cao quy chuẩn được thiết kế là 2200mm. Chiều ngang của cánh cửa dưới 800 mm (L1), Từ 800 đến 1000 mm (L2), trên 1000 mm đến 1200 mm (L3), trên 1200 mm đến 1500 mm (L4).
Trường hợp cánh có kích thước lớn hơn thì hoặc chuyển thành cua kinh trượt hoặc làm thành vách kính. Mặc định kính làm cửa kính thủy lực là kính trắng trong không màu, không hoa văn. Tùy theo yêu cầu của khách hàng có thể phun cát làm nhám 1 phần diện tích để tạo chữ hoặc hình, có thể phun sơn hay làm kính màu.
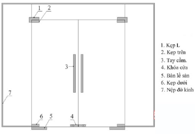
Bản lề
Bản lề là cơ cấu chịu lực cho cánh cửa và đảm bảo cho cửa đóng mở nhịp nhàng. Bản lề là phần nối với kính qua kẹp kính bằng một trục (ngỗng) xoay tròn, dính liền với bản lề, có cạnh vuông hoặc hơi dẹt.
- FC34-20 là loại dành cho cửa có chiều rộng từ 800 đến 1000 mm
- FC34-25 là loại dành cho của có chiều rộng từ 1000 đến 1200 mm
- FC49 là loại dành cho cửa thủy lực có cánh kích thước lớn từ 1200 – 1500 mm.
Kẹp kính thủy lực
Kẹp kính thủy lực là phụ kiện không thể thiếu. Trên thị trường hiện nay có hai loại kẹp kính chính là kẹp nhỏ và kẹp lớn (thanh ngang dài). Với những loại kính thông thường phải dùng kẹp lớn để tránh gây tình trạng nứt vỡ.
Loại kẹp kính nhỏ có hai loại: Kẹp kính trên và kẹp kính dưới được gắn ở 2 cạnh trên – dưới của cửa kính. Kẹp kính thủy lực dưới được gắn với kính bằng cách khoan 2 lỗ có đường kính tương đương với độ dày của kính, cách nhau đúng bằng khoảng cách ở trên kẹp kính.
Khóa sàn
Khóa sàn cửa kính hay còn gọi là khóa chân kính, khóa kẹp chân kính. Khóa có hình chữ nhật được lắp dưới cửa kính.
Tay nắm
Mỗi cánh cửa được lắp 1 bộ phụ kiện gồm 2 phần nằm đối nhau 2 bên tấm kính. Tay nắm cửa kính thủy lực có tác dụng tránh dính vết ở trên tay lên kính, làm mờ kính. Bên cạnh đó tay nắm cũng giúp việc mở ra đóng vào thuận tiện hơn. Có thể dùng để khóa bằng khóa dây.
Phụ kiện dùng cho cửa kính cường lực

Để tăng tính thẩm mỹ và đa dạng, cửa kính cường lực có đa dạng các loại phụ kiện và bộ phận, cụ thể như: Bản lề, khóa sàn, tay nắm, kẹp kính, gioăng chắn, cụm bánh xe, giảm chấn,… Sau đây là các loại phụ kiện cơ bản được sử dụng phổ biến trong cửa kính cường lực.
- Bản lề sàn là một phụ kiện quan trọng, chưúng được chôn bên dưới mặt đất để chịu lực cho cửa kính.
- Tay nắm cửa kính có rất nhiều mẫu mã và nó thường được làm từ Inox cao cấp, không gỉ.
- Kẹp cửa và kẹp chữ L là phụ kiện được gắn lên trên các vách kính cường lực, mặt hạt. Giống với tay nắm kẹp cũng được làm từ Inox không gỉ.
- Khóa sàn là phụ kiện có công dụng khóa cửa, đây cũng là một bộ phận không thể thiếu của các loại cửa kính.
- Đế sập là phụ kiện được làm từ chất liệu nhôm, đế sập giúp hạn chế được các lỗi kỹ thuật trong quá trình thi công, đồng thời làm gia tăng vẻ đẹp cho cánh cửa.
Mua cửa kính cường lực ở đâu chất lượng, giá tốt nhất?

Với nhiều năm kinh nghiệm sản xuất và thi công trực tiếp các công trình cửa kính cường lực từ công nghiệp đến dân dụng, Kính Miền Nam tự tin sẽ mang đến cho khách hàng những dịch vụ và sản phẩm tốt nhất hiện nay.
Tiếp theo, mời bạn tham khảo bài viết Tempered Glass là gì tại website của chúng tôi ngay nhé.
Kính Miền Nam là đơn vị chuyên thi công, lắp đặt, cung cấp cầu thang kính, kính cường lực, kính ốp bếp. Liên hệ với chúng tôi qua hotline 0916171949 để được tư vấn và lựa chọn sản phẩm tốt nhất.

Tin cùng chủ đề
Cửa Sổ Kính Cường Lực Có An Toàn Không?
Hẳn là chúng ta có thể dễ dàng bắt gặp cửa sổ kính cường lực... Xem thêm
Khóa Cửa Kính Cường Lực Loại Nào Tốt Nhất?
Cửa kính cường lực sử dụng khá nhiều trong các công trình kiến trúc xây dựng... Xem thêm
Cách Chỉnh Tốc Độ Bản Lề Sàn Cửa Kính Cường Lực Nhanh Và Hiệu Quả Tại Nhà
Cửa kính cường lực là sự kết hợp giữa kính cường lực và hệ phụ... Xem thêm
Có Nên Làm Mái Kính Cường Lực Không? Đơn Vị Lắp Đặt Uy Tín Hiện Nay
Mái kính cường lực được ứng dụng cho nhiều những công trình khác nhau. Giúp... Xem thêm
Những Điều Cần Phải Biết Về Cửa Kính Cường Lực Trượt Lùa Phòng Tắm
Cửa kính lùa đang được coi là sản phẩm hoàn hảo nhất cho không gian... Xem thêm
Xu Hướng Phòng Tắm Kính Trong Phòng Ngủ Mang Phong Cách Độc Đáo
Việc xây dựng một phòng tắm kính trong phòng ngủ mang một nét mới độc... Xem thêm
ĐĂNG KÝ TƯ VẤN MIỄN PHÍ